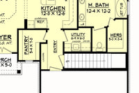
Four bedroom efficient design under 1800 square feet. This home offers 4 bedrooms 2 baths with island kitchen and walk-in pantry. The master suite is large with his and her closets, dual sinks, jet tub, large shower, and compartmented toilet. With a stunning traditional style exterior, this home will be the talk of the town.

| Finished (Heated and Cooled) Areas | |
|---|---|
| Heated Area Main Floor | 1798 |
| Heated Area Second Floor | 0 |
| Total Finished Square Footage | 1798 |
| Unfinished (unheated) Areas | |
|---|---|
| Front Porch | 0 |
| Rear Porch | 0 |
| Other Porches | 145 |
| Garage | 517 |
| Storage | 16 |
| Bonus Room | 0 |
| Other | 0 |
| Total Unfinished Square Footage | 678 |
| Additional Plan Specs | |
|---|---|
| Primary Roof Pitch | 9:12 |
| Other Roof Pitches | 11:12 |
Electronic, read only, copy of plans that gives the right to make multiple copies and includes a license to build the structure one time for single use license and unlimited times for unlimited use license. Files are typically emailed (no printed sets will be shipped). This package allows the user the right to modify the plans. Any derivative work of this plan is still protected under federal copyright laws.
Electronic files in .DWG format, "Version Varies", are provided for use by a local designer / architect / engineer to make minor to major alterations and these files are typically emailed directly to the customer (no printed sets will be shipped). This package includes a license to modify, reproduce and build unlimited homes, "Unlimited Use License".
Five sets of plans printed and mailed directly to you and includes a license to build the structure one-time. You will also receive PDF files with this package that will be emailed to you.
All Sales are Final. Due to copyright laws and the ability to copy plans, your plans can not be returned once your order has been placed. If you would like assistance in selecting your home plan before you order, please contact our customer service center. We will work hard to make your home plan buying experience a success.
These plans are NOT stamped by a structural engineer or registered architect and were designed to meet the current building code at the time of their design, such as the International Residential Code. Due to regional requirements such as: high wind areas, seismic conditions, soil conditions, snow loads and other specific circumstances, we encourage you to consult with an engineer or architect familiar with conditions in your area prior to building. In addition, local building departments may require that the plans be reviewed and/or modified to comply with local requirements. Please contact your local building department before placing your order.
Below you will find a listing of the typical items found:
*Note: The items listed above as “Not available on all plans” are not always required for every plan depending on location and complexity.
Please fill out the form below and someone will contact you to discuss.